在使用过程中,不同部位的标注,需要用不同的颜色来区分,那么如何在CAD快速看图中修改标注的颜色和大小呢?请看攻略:
标注设置按钮: 可以设置标注的颜色、大小,对以后做的标注产生影响。
VIP--修改单个标注属性:可以设置标注的颜色、大小,对已经做的标注产生影响。
一、标注设置-对以后做的标注产生影响
1、CAD快速看图默认的标注颜色是橙色,如果不喜欢,可以点击工具栏的“标注设置”按钮来设置颜色。从这里设置后,本张图纸以后做的标注都是改变后的颜色。点击“标注设置”按钮,选择一个喜欢的颜色,这里选择黄色,点保存即可。文字大小默认自动,也可以活动更改。

2、改变后,测量功能中所有的标注、文字标注、任意线标注都会变成更改后的颜色--黄色。

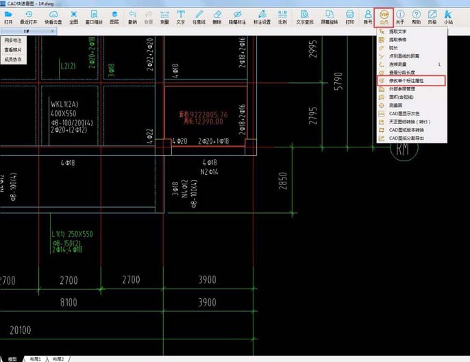
二、4修改单个标注属性-对已经做的标注产生影响
1、对于已经做好的标注,可以点击VIP按钮中的“修改单个标注属性”来修改颜色和文字大小。或者在图纸上右键,出现右键菜单,选择“修改单个标注属性”。

2、按照鼠标旁边的提示,左键选择一个已经有的标注。

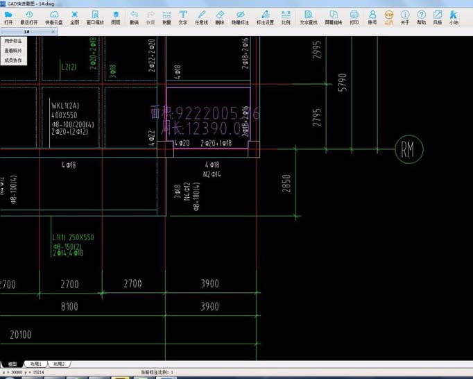
3、弹出对话框,可以选择标注颜色和大小,还有比例。这里选择紫色,文字高度变大些。


4、关闭对话框,就可以看到,标注的颜色和文字大小已经改变啦。快来试试吧。

相关推荐: