cad中的表格想要编辑,该怎么编辑表格呢?下面我们就来看看cad编辑表格行列的教程。
1、通过【T20天正建筑V4.0】软件的快捷方式,启动【AutoCAD 2014 - 简体中文 (Simplified Chinese)】软件,然后【选择文件】对话框载入绘制好的表格文件。

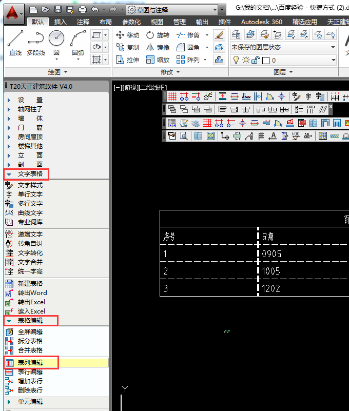
2、接着通过左侧【T20天正建筑软件V4.0】工具栏,依次选择【文字表格】》【表格编辑】》【表列编辑】选项。

3、点击【表列编辑】按钮后,根据信息提示,选中所需编辑的单元列,如图所示。

4、接着在【列设定】对话框中,我们根据需要设置好相关参数,如图所示。

5、接着单击【确定】按钮,关闭对话框,完成该列格式的设置操作,如图所示。

6、最后按照以上方法,继续选择表格其他单元列,同样在【列设定】对话框中,对其列参数进行设置即可,最终效果如图所示。

以上就是cad编辑行列的教程,希望大家喜欢,请继续关注脚本之家。
相关推荐: