CAD图纸利用布局可以将我们需要的模型里面东西显示出来,模型其余部分不显示,这样可以在视口中调正所要显示的文件,为了清晰显示,肯定是显示的图纸越大越好。遇到不规则的图形,或者是有局部地方需要大样图表示的,此时就要用到异形视口了。
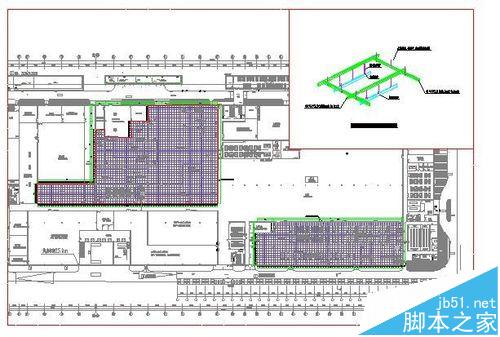
1、首先,我们打开一个工程图纸,如下图所示,是某项目二次吊挂图纸,旁边有个小图是二次吊挂的局部详图。

2、我们要到布局,利用布局标签下的多边形,可以绘制任意多边形。


3、在右上角缺口处画一个小矩形的视口,mv(新建视口),

4、双击进入视口调整视口内图形比例,如果有合适比例可选就选其中比例,否则,可自定义比例,


5、自定好图纸比例,将大图纸调整到1:300

6、将详图调整到1:100,即可得到下图所示布局

注意事项:
本人所用软件为CAD2014版,如其他版本可能工具栏不同。
相关推荐: