CATIA生成二维图的世欧,在剖视图中可能会出现剖面线部分间距过大,从而出现黑框影响视图效果,该怎么解决这个问题呢?下面我们就来看看详细的教程。
1、如图所示,catia中先简单制作一个零件。

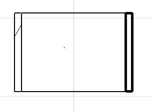
2、生成工程制图,即可发现剖面部分出现黑框,并不是二维图显示的剖面线。

3、如果出现这种情况,很多人都束手无策,无法显示。我们不要着急,只需将鼠标挪动图中示意处,出现以下界面。

4、因为剖面线的边框与零件边线重合。这种情况下,我们需要按下ALT+鼠标左键,出现以下界面,然后选定剖面线边框。

5、之后可松开ALT键,将鼠标挪动至第二栏形状,右键属性后,即可实现对剖面线的设置。

6、进入设置界面后,将剖面线间距适当调小后,即可正常显示。

7、修改后剖面线效果图如下:

以上就是catia工程图剖面线部分出现黑框的解决办法,希望大家喜欢,请继续关注脚本之家。
相关推荐: