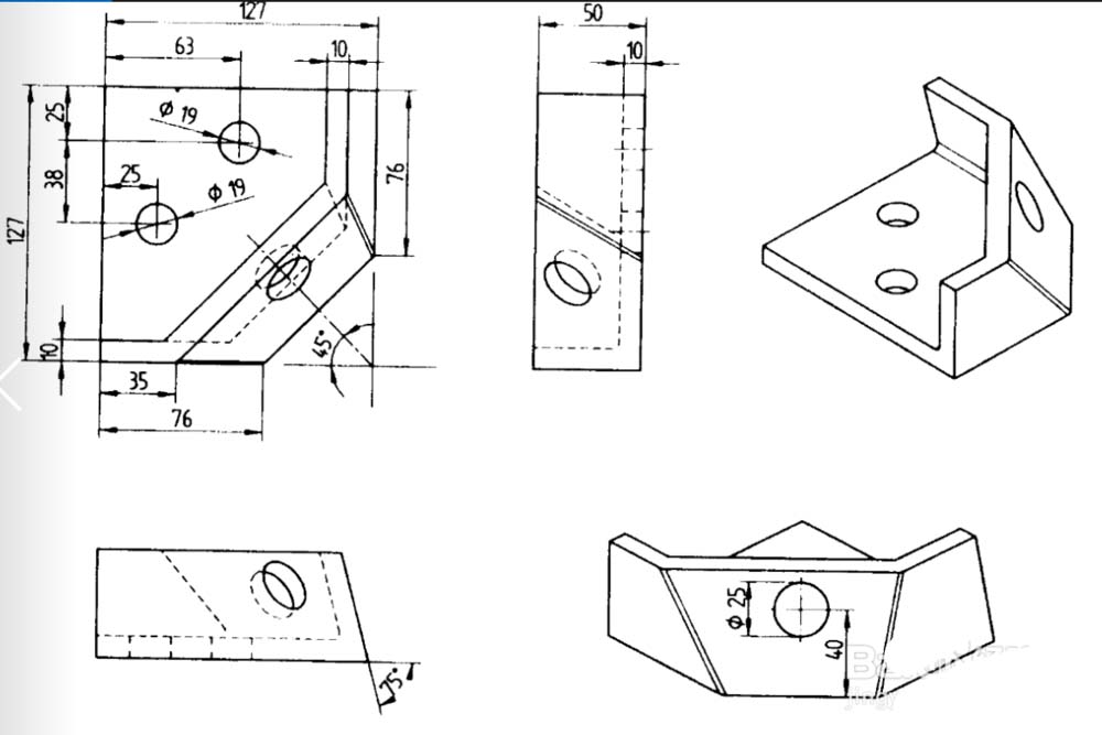
ug中想要建模倾斜面固定板,该怎么建模呢?下面我们就来看看详细的教程。

1、新建建模文件,选用拉伸命令,以XY面为截面草绘面。进入草绘模式。



2、根据所给图的尺寸绘出拉伸截面的结构线。如图所示。


3、绘制该零件最重要的一步
截面线绘完后,进入拉伸对话框;拉伸距离为50,激活拔模选项,选择“从截在面“;角度选项为”多个“;根据图纸所给数据,得知有两个面是倾斜的;角度分别是15、30.1度;分别对相应的面设定角度。完成模型的基本结构。


4、选用抽壳命令,厚度为10.如图所示。

5、选用开孔,在倾斜面上定好开孔点;定位及孔尺寸如图所示。


6、进入工程图,标注各视图的尺寸。

以上就是UG建模的方法,希望大家喜欢,请继续关注脚本之家。
相关推荐: