CAD快速看图软件怎么设置离线VIP?

所属分类: 软件教程 / 图形图像 阅读数: 1595
收藏 0 赞 0 分享

CAD快速看图是一个很快很方便的看dwg图纸的软件,他的VIP功能需要联网使用,那么没有网络时如何使用呢?请往下看:

 

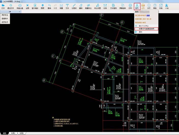
1、打开CAD快速看图,点击“账号”按钮登录自己的快速看图账号。如果你是VIP会员,那么会在账号按钮里出现一个按钮“申请VIP功能离线使用”。如果你不是VIP会员,那么没有这个按钮。

2、点击“申请VIP功能离线使用”按钮,会出现成功提示。

3、点击“查看证书”,可以看到当前账号,可使用的期限等。此时就代表这台电脑可以在没有网络的情况下使用VIP功能了。

相关推荐:

低版本的cad怎么打开高版本CAD的DWG文件?

CAD手机看图怎么使用? CAD手机看图查找图片的存储位置的方法

更多精彩内容其他人还在看

XMind7如何导出甘特图为图片 xmind 7导出甘特图教程

甘特图是思维导图中用来进行项目管理的最佳手段,XMind 7不光能够进行甘特图操作还能将成果进行导出,保存为多种格式
收藏 0 赞 0 分享

solidworks怎么绘制钣金成型工具?

solidworks怎么绘制钣金成型工具?使用钣金成型工具绘制图形很简单,但是很多情况下也有可能导致绘制不成型,该怎么办呢?下面分享solidworks钣金成型工具的使用方法,需要的朋友可以进来参考一下
收藏 0 赞 0 分享

Adobe Flash Player 20.0.0.267更新下载:重要Bug修复和安全更新

Adobe Flash Player又再次更新了,这次版本号是20.0.0.267,主要为大家带来了重要Bug修复和安全更新,建议网友们尽快下载更新
收藏 0 赞 0 分享

美图秀秀怎么快速做出分割字效果?

分割字是在美图秀秀中一个比较复杂的功能,对于大多数用户来说可能都没有听所过这个,但是,一旦掌握了这个技巧,我们就能随意将字体分割,形成比较具有个性化的分割字。那么美图秀秀怎么快速做出分割字效果?下面我们来看看吧
收藏 0 赞 0 分享

PS CC滤镜库无法兼容Mac OS X 10.10.5,且更新不了的解决方法

下面小编为大家介绍PS CC滤镜库无法兼容Mac OS X 10.10.5,且更新不了的解决方法,对于碰到同样问题却不知道怎么解决的朋友可以参考本文,希望这篇文章能对大家有所帮助
收藏 0 赞 0 分享

用美图秀秀快速给图片添加漂亮的饰品

如果想要在下载的图片上加上一些装饰品,小物件怎么办呢?今天小编为大家分享用美图秀秀快速给图片添加漂亮的饰品方法,不会的朋友快快来学习吧
收藏 0 赞 0 分享

win10系统中怎么删除Adobe Reader残余文件夹CMap?

win10系统中怎么删除Adobe Reader残余文件夹CMap?电脑中Adobe ReaderPDF阅读器怎么中残余文件夹cmap很大,该怎么办呢?怎么删除?下面分享win10删除adobe残余的方法
收藏 0 赞 0 分享

美图秀秀背景虚化特效该怎么做?美图秀秀虚拟背景的制作方法

美图秀秀背景虚化特效该怎么做?之前背景虚化都是在ps中做的,虽然不麻烦,但是ps软件很大,安装很麻烦,现在使用美图秀秀也可以做虚化背景啦,下面分享美图秀秀虚拟背景的制作方法
收藏 0 赞 0 分享

faststone capture截图神器怎么更改图片默认保存格式?

faststone capture截图神器怎么更改图片默认保存格式?使用faststone capture截图是png格式的,太大了,想设置成jpg格式的该怎么设置呢?下面分享faststone capture更改截图默认格式的教程
收藏 0 赞 0 分享

ACDSee怎么量重命名?acdsee重命名的详细教程

ACDSee怎么量重命名?很多图片的格式和名称是不和要求的,想改成统一规范的图片文件名,一个一个的修改太慢了,怎么批量修改呢?下面分享acdsee重命名的详细教程,需要的朋友可以参考下
收藏 0 赞 0 分享
查看更多