使用UG时,有时想要知道切割零件的周长,来计算加工费。有时想要方便了解零件周长尺寸等,今天我们就来看看ug测量零件的周长等尺寸的几种方法。

方法一:
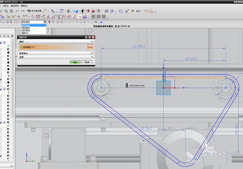
1、在草图编辑模式下,在菜单栏里找到“工具”-“分析”-“测量长度”。

2、用鼠标点击,选择要测量的曲线或直线,依次会将点击的曲线长度求和,最后的结果是鼠标选取的所有曲线的总长度,选一周即为周长。可在图标栏里“曲线规则”下拉框里,选择选择曲线的模式:单条曲线、相连曲线、相切曲线、面的边。测周长选择“相连曲线”测量较快。测单条曲线,选“单条曲线”。


方法二:
在菜单栏里找到“工具”-“分析”-“测量面”,选择面,选择周长。结果为1744.0804mm。


方法三:
1、在建模模式下,测量周长。在菜单栏里找到“工具”-“分析”-“测量长度”。同理,选择边,即可测出周长。


方法四:
也可以在草图编辑模式下,用鼠标框选曲线,得曲线周长1744.0804mm。与上面方法测量结果一致。

以上就是ug测量零件周长的教程,希望大家喜欢,请继续关注脚本之家。
相关推荐: