cad沪指图纸很简单,想要绘制一个简单的建筑图纸,该怎么绘制建筑平面图呢?下面我们就来看看详细的教程。

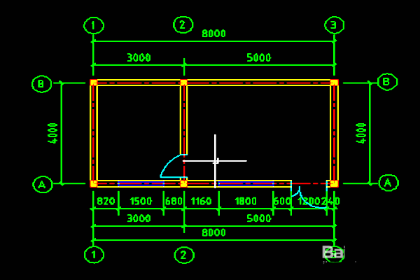
1、首先,运用绘图功能中的直线按照比例尺寸绘制出轴网。轴网绘制我们一般将轴网的颜色选择为红色,轴网的线型选择为虚线形式。这样做的目的为了区分线条,图纸绘制好以后看图容易一目了然。

2、轴线绘制好以后,接下来绘制墙体。运用软件中的偏移功能将轴线两面偏移,偏移后将线条的颜色改为黄色,将线条的线型改为直线。这样墙体就绘制好了。

3、墙体绘制好以后,接下来再来绘制构造柱。同样适用绘图功能中的直线功能或者多边形,先在需要布置柱的位置绘制出柱的轮廓。在运用软件中的图案填充功能将柱的区域填充后构造柱就布置好了。

4、构造柱布置完成以后,就要绘制门窗了。根据所需要的门窗大小在拟定的位置布置门窗。窗户的颜色选用蓝色,门的颜色选用浅蓝色或其他颜色。

5、门窗绘制好以后,选择标注中的线性来对图纸进行标注尺寸。标注尺寸的颜色一般都选用绿色。

6、尺寸标注完成以后在来标注一下轴号,轴号标注好以后图纸基本上就已经绘制好了。如果感觉图纸还是表示的不太清楚的话,还可以在图纸的一侧标注一下文字说明来说明图纸的内容。

以上就是cad绘制建筑平面图的教程,希望大家喜欢,请继续关注脚本之家。
相关推荐: