生活中楼梯是很常见的,楼梯的样式也很多,今天我们就来看看cad建模交叉楼梯的教程。
1、打开天正建筑,绘制四段相互连接的墙体,并在墙体上加两个门,如下图所示

2、点击“楼梯其他”,然后点击“交叉楼梯”,如下图所示


3、打开“交叉楼梯”编辑页面,依次选择自己需要的数据,如下图所示



4、在“交叉楼梯”编辑页面点击“确定”,如下图所示

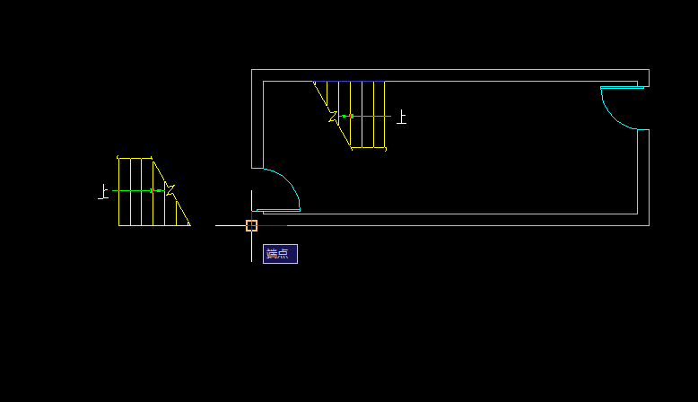
5、根据命令行提示,绘制交叉楼梯;然后点击选择交叉楼梯,移动到房间中间位置,如下图所示



6、交叉楼梯绘制完成,如下图所示

7、在命令行输入“3DO”,点击回车键,进入“受约束的动态观察模式”,然后就可以直观的看到自己绘制的交叉楼梯,如下图所示

8、最后,可以改变一下“视觉样式”,看一下自己绘制的交叉楼梯;在“受约束的动态观察”模式下点击鼠标右键,选择“视觉样式”,点击“真实”,如下图所示

以上就是cad建模交叉楼梯的教程,希望大家喜欢,请继续关注脚本之家。
相关推荐: