cad中想要房间的结构图,该怎么画呢?下面我们就来看看cad画房间结构图的教程。
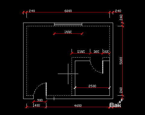
1、如下图是最终画图出来的效果。

2、如下图所显示,单击直接,或者按快捷键L回车。

3、在单击鼠标空白处,在进行拉动的时候输入6000,输入后就回车键,这就是一条直线了。如果不是直线的话就按F8就可以直线了。

4、在进行下拉的时候输入5000,输入后就回车键,如下图可以看得出来。

5、在进行左边拉动,在输入4600输入后就回车键,就可以得出如下图。

6、在进行向下拉动,在输入240回车。

7、在边工具栏选择偏移或者按O字母。

8、如下图在输入900,要偏移900毫米,这里是门口,这里说明一下要选择这个边才可以哦。

9、在单击左边,偏移900就可以出来了。一条线就可以了,是240的。

10、如下图在进行画500是行线,向上的线是画5000。

11、在进行偏移,选择上面的横线。

12、输入O字母,大小写都可以的,

13、在输入240,这个是意思是要偏移多少距离。

14、在单击上面就可以得出来一条线一样的出来。

15、单击如下图倒角。

16、在选择要倒角的线路,在选择另一条倒角的线路。

17、按照上一步的操作就可以得出如下图。

以上就是cad2008画房间结构图的教程,希望大家喜欢,请继续关注脚本之家。
相关推荐: