cad中绘制平面图很简单,今天我们就来看看使用cad绘制客厅开关平面图的教程,请看下文详细介绍。。
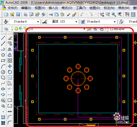
1、如下图所显示,这里是客厅的灯,要进行布置开关。

2、这里的阳台布置一个一位开关就可以了。

3、如下图布置一个四位开关,四位开关在进门的左边。

4、在用一条直线连接如下图,这条直线表示线。

5、另一条线是控制吊灯的。

6、如下图两条线是连接铜灯。

7、在有两条线连接另外的铜灯。

8、在布置如下一位开关,这里可以不要,也可以设置,看客户的要求。

9、在用布置一控双开有开关,这时可以控制走廊灯。

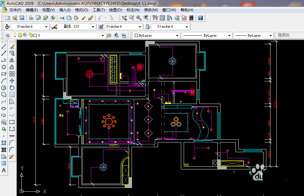
10、如下图就可以完成了cad客厅开关布置图。

11、这里就画完整套间的开关布置图了。

以上就是cad绘制客厅开关平面图的教程,希望大家喜欢,请继续关注脚本之家。
相关推荐: