前几天有人在网上问了这个问题并附上了截图,当时我还没太在意,今天我重现了这个现象并找到原因,简单给大家讲一下。

一、原因介绍
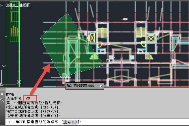
1、这其实不是错误,而是AUTOCAD 2015板增加的一个新功能。在PS等软件中就有套索的功能,用户可以用不规则的区域来选择图形。其实在CAD低版本中也可以用多边形区域来选择图形,在命令提示选择对象时,可以输入WP或CP用多边形区域进行窗口和交叉选择,如下图所示。

2、当命令行提示选择对象时,输入?号,回车,我们就可以看到WP、CP等这些隐藏的捕捉选项,前面曾发文章介绍过,这里就不再多说了。
我想AUTOCAD为了让不规则区域选择更方便,也是为了模仿PS的套索选择功能,到AUTOCAD 2015版对框选进行了改进。选择对象时,我们单击左键,松开鼠标,拖动,就变成矩形的窗口选择,如果按住左键拖动就会自动变成套索选择。对于套索选择,同样存在三种模式,当出现套索时,我们注意看命令行提示,如下图所示。



3、命令行提示我们可以按空格键可在三种模式间切换,这三种模式分别是窗口、窗交和栏选,窗口就是在完全在套索区域内的图形才会被选中,窗交是只要有一部分在窗口内部的图形都会被选中,栏选就是与套索边界相交的对象才会被选中。大家既然学会了如何操作,不妨可以试试这三种套索模式选择的效果,看看自己哪些情况下用得上。
二、关闭套索选择
如果你觉得套索选择能用得上,你就需要注意他和矩形窗选的操作的区别,掌握好操作的技巧。如果我们觉得套索选择不方便,而且还会妨碍我们正常的选择的话,可以将套索选择关闭,关闭的方法非常简单。
输入OP,回车,打开选项对话框,单击“选择集“选项卡,我们会看到一个"允许按住并拖动套索"选项,单击取消勾选此选项,然后我们再选择对象时,即使按住鼠标左键并拖动也不会出现套索了。


2、CAD在推出新功能后,有些会对操作习惯有所改变,有的人会快速适应这种变化,但这种改变可能对有些人用处不大,但对他们之前习惯的操作反倒有影响,因此很多人宁愿用老版本。CAD每个版本都会增加一些新功能,有些功能大家很快就会用起来,但有些功能却过了好多年仍然没有多少人用,有些功能很强大,但操作比较复杂,比如图纸集、动态块、参数化等,有些功能隐藏得较深,CAD帮助还放到了网上,看起来很不方便,于是知道的人也不多。
编辑图形就需要先选择图形,提高选择的速度对提高图形编辑的效率非常重要,因此CAD不断增加各种选择方式,点选、框选、选择过滤器、快速选择、选择相似对象、套索选择,还有好多隐藏起来的选项选项,了解这些选项的作用,在选择图形时选择最合适的方式可以起到事半功倍的效果。
形时选择最合适的方式可以起到事半功倍的效果。
相关推荐: