小编给大家介绍下CAD怎么输入孔深、沉孔符号。
1、给图标上尺寸
2、双击尺寸或者选中按ctrl+1——拖动滚动条到文字替代——输入\fgdt;v%%c40\fgdt;x10(\fgdt;v代表圆柱形沉孔和锪平面孔符号;\fgdt;x代表孔深符号;\fgdt;w代表锥形沉孔符号)——按确认或者点击关闭即可


3、点击分解——选择尺寸

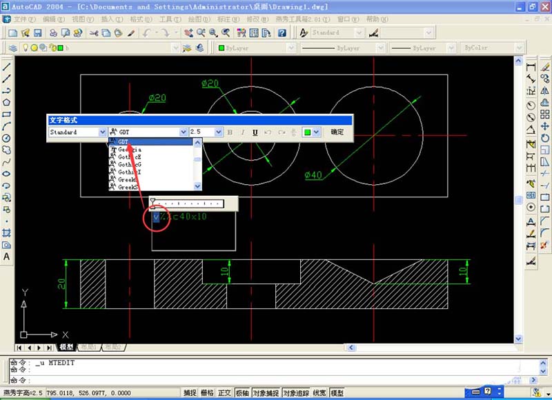
4、双击尺寸——文字格式如图选择GDT——在原有尺寸前输入v,后面输入x10(在GDT下v代表圆柱形沉孔和锪平面孔符号;x代表孔深符号;w代表锥形沉孔符号)

5、在分解后或者添加多行文字后——如图所示输入v%%c40x10

6、分别将v ,x的文字格式选择GDT即可


相关推荐: