cad地砖填充怎么设置尺寸?

所属分类: 媒体动画 / AutoCAD 阅读数: 70
收藏 0 赞 0 分享

在绘制CAD图形中,难免需要填充地面,然而如何正确的填充地砖尺寸,很多新手不是很懂,比如需要填充500*500的地砖、300*300的地砖、或者800*800的地砖,尺寸的控制如何正确的把握是有科学依据的,不是随意的去输入比例的,那么小编将给大家介绍如何正确使用填充地砖尺寸的大小,进行演示。

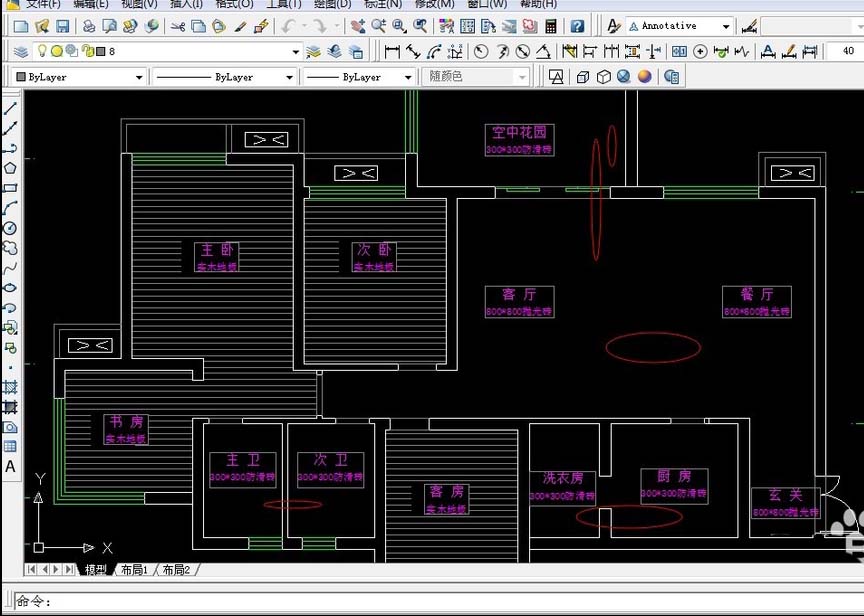
这里演示,准备好了一张图形,如图空白区域需要填充的地砖。

1、输入命令H,并确实,弹出对话框,如图:

2、查看“图案填充”--类型和图案--类型--用户定义,如图:

3、勾选--双向,比如是需要画500*500的地砖,就把间距输入“500”,300*300就输入300,这里就不多举例了,我们先画500来演示,如图:

4、拾取点,直接拾取客厅与餐厅部分,如图:

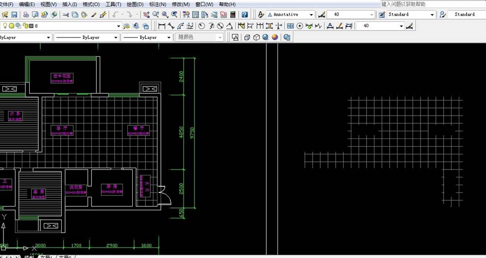
5、用命令“空格键”确定,弹出对话框,先预览下效果,如图:

6、再次空格键确定,并在弹出的对话框用鼠标点击确定。填充算是玩了,接下来检查下,填充的尺寸是否是500*500,把填充好的图形用CO/CP复制出来一个,如图:

7、用X命令打散复制出来的图形,(打散是为了好用线性标注来确定端点以便量好尺寸)如图:

8、输入命令DLI,随意找一个地砖来测量一下尺寸,如图,显示500*500,说明填充设置正确。

9、OK,关于地钻填充的基本原理,就是这样了。

相关推荐:

cad2007怎么绘制厨房的水槽和水龙头?

CAD怎么设计厨房?CAD商用厨房设计插件的使用方法

cad怎么使用厨具通插件将厨房设计平面图转成效果图?

更多精彩内容其他人还在看

cad剖切命令怎么使用?

cad剖切命令怎么使用?cad是画图常用的软件,其中剖切又是三维图形所必须的操作之一,这个操作可以让你更容易的创建一个你想要的三维实体出来,下面就来看一下如何使用剖切命令吧
收藏 0 赞 0 分享

CAD中虚线不显示该怎么调?

CAD中虚线不显示该怎么调?CAD文件中虚线显示不出来有两个原因,下面我们一起来看看是哪两个问题造成cad虚线不显示,以及解决办法,需要的朋友可以参考下
收藏 0 赞 0 分享

CAD怎么画立体图?CAD怎画圆锥体的教程

CAD怎么画立体图?在使用CAD时我们常常都是使用CAD来进行平面图形的绘制,但是cad其实也强大的立体图绘制功能,下面分析那个CAD怎画圆锥体的教程,需要的朋友可以参考下
收藏 0 赞 0 分享

CAD如何画立体图?CAD画圆锥体方法

CAD如何画立体图?对于一些新手来说,很多朋友都不知道怎么绘制,其实方法很简单,下面小编就为大家CAD画圆锥体方法,希望能对大家有所帮助
收藏 0 赞 0 分享

CAD怎么新建图层图纸?

CAD怎么新建图层图纸?当大家时用CAD一段时间后,对命令有了一定的了解,开始画复杂图形的时候,会用到图层的命令,图层方便同一属性的管理,比如画可以区分自己所画的辅助线和实例图
收藏 0 赞 0 分享

CAD2010文档图纸怎么设置降级保存?

CAD2010文档图纸怎么设置降级保存?最近再练CAD ,学会了一些小技巧,今天就教教大家2010怎样降级保存文件,以方便在07或04的CAD上看,需要的朋友可以参考下
收藏 0 赞 0 分享

CAD拉伸命令S不能移动怎么办?

CAD拉伸命令S不能移动怎么办?在CAD中拉伸命令S不能拉伸块的原因,其实很简单。块的基点没在块上,离块太远了,所以用S命令框选的时候没选上基点,下面分享解决办法
收藏 0 赞 0 分享

怎么给cad文件夹设置密码加密?

怎么给cad文件夹设置密码加密?经常用cad画一些设计图纸,然后存放在文件夹里面,有的时候关电脑不放心,怕被人偷走自己的设计,下面分享加密的方法,需要的朋友可以参考下
收藏 0 赞 0 分享

2010版cad 更改背景颜色图文教程

这篇教程是向脚本之家的朋友介绍2010版cad 更改背景颜色方法,教程很不错,对于不知道怎么操作的朋友很有借鉴方法 ,一起来看看吧
收藏 0 赞 0 分享

windows系统怎么纯净安装CAD2007?

windows系统怎么纯净安装2007CAD?cad是绘图相关室内设计,装修,园林设计的都用的到这个软件,但是很多人不会安装,下面分享cad2007的安装方法,需要的朋友可以参考下
收藏 0 赞 0 分享
查看更多