我们在作图的时候,有时候想要旋转一个图形或者是块,但是不知道角度,即使知道角度有时候旋转的图形可能也不是自己想要的,那么怎么快速旋转成自己需要的呢?小编给你讲讲小编的经验

比如说小编想要将一个矩形挪动成如图所示
1、首先选中矩形,快捷键ro,空格键,如图所示
2、然后选中一个基点,如图所示,命令版上会出现命令,我们选择R,空格,如图所示
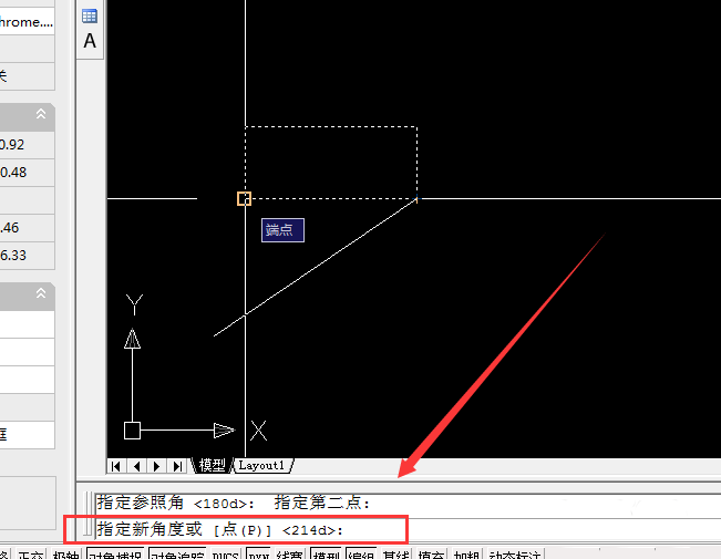
3、命令版出现的是指定参照角,如图所示
4、我们选择矩形的最下面的两个点,先选择右边的点,然后左边的点,如图所示
5、然后会出现指定新角度,点击新角度的另一边,就可以了,旋转成功,如图所示
相关推荐: