在我们的工作中经常会需要通过CAD图纸计算其中的工程量,计算长度时一段一段去标记计算太麻烦,通过多段线计算长度等是CAD的功能之一,它可以大大节约我们的时间,为我们工作提供方便。
1、打开需要计算工程量的CAD图纸。

2、通过鼠标,调整到需要计算的位置。

3、在CAD左侧菜单栏中鼠标左键点击多段线,然后在图纸中选中需要计算的多段线。

4、还可以通过上侧菜单栏中的绘图-多段线,选中后在图纸中画出多段线。

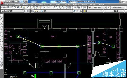
5、选中多段线后在图纸中沿着线路走向画出多段线。

6、选中刚刚画出的多段线,弹出多段线图层框,在里面的全局宽度输入一个数值,可以使该多段线看起来更加明显,一般30-60即可。

7、选中该多段线,单击鼠标右键选择特性,即在CAD右侧弹出特性对话框。

8、在特性对话框中找到几何图形,最后一项长度,即为该多段线的长度。

相关推荐: