电梯走向决定人流方向,对做项目定位、人流动线分析等至关重要,对于建筑行业的朋友来说这不算什么?但对于不太懂图纸的朋友们来说,会有些难度,小编在这里分享希望对朋友们有所帮助。
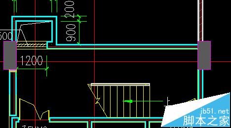
1、首先来看下面图纸,在一张图里出现了两种,楼梯标注上下线【有转角】的,有【没转角】的。

2、小编告诉你,图1【没转角线为单跑梯】,就是说只有一个平台直接上二楼,只有一个梯段、那么从哪看哪边是上,哪边是下的呢,这要看图纸【首层】也就是最底层,图2,看到没?标注上的地方就是开始上楼的地方。


3、同样小编告诉你,双跑上楼的位置,图1,双跑梯子就是楼层中间有个休息平台改变一次方向的楼梯,有两个梯段。


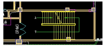
4、现在小编告诉您什么样的梯子是踏梯如图,同样一张图纸出现了,两种长度的梯子。层高同样高,梯子长度不一样,可能朋友们或许知道了哈,接着下看


5、对,短的为踏梯,那么它的上下端在什么位置呢,同样看首层图纸。

6、不用说了长的为坡梯,【坡梯一般出现在商业区比较多】,那么它的上下端在什么位置呢,同样看首层图纸。【注,坡梯比踏梯长,有时标注的踏步多一看就能分清了】

7、最后告诉大家,坡梯好踏梯好,还分几种形式,例如:什么为【并行梯】什么为【交叉梯】,下节将告诉大家。


相关推荐: