Aotocad是建筑中绘图中基础软件,我们在绘制建筑平面图时都要绘制墙线,可是一根一根来画墙线费时又费力。其实只要用到cad中的多线命令就能快速画出墙线。

1、先在cad中画出轴线,形成轴线网。

2、画完轴线网后,在命令行输入“mlstyle”命令敲回车键。

3、弹出新建多线样式,单击新建填写多线名称单击继续。


4、弹出新建多线样式窗口,在图元中点击添加按钮,将一项偏移改为1.2中间为0第三项改为-1.2点击确定。

5、设置完成后,在命令行输入“ml”命令敲回车键。

6、命令执行后,输入对正j将对正输入类型改为无,在输入比例s将输入多线比例改为1。


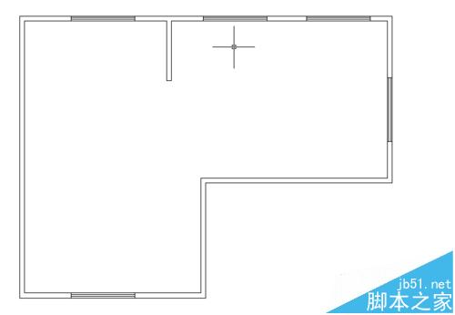
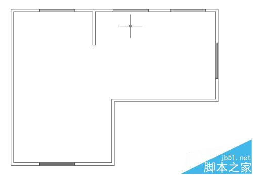
7、设置完成后,在轴线网中制定多线起点,单击起点后按照图纸要求画出墙线。

8、墙线全部画完后根据图纸进行修剪就行了。


注意事项:墙线偏移要根据实际墙厚来设置。
相关推荐: