学cad朋友们都知道平面图是比较好画,直接复制图库就可以了,但是碰到立面图的时候就不知道怎么下手了,怎么画好立面图呢?特别是画到电视墙立面图的时候不懂怎么画,下面我就简单介绍怎么电视墙立面图。
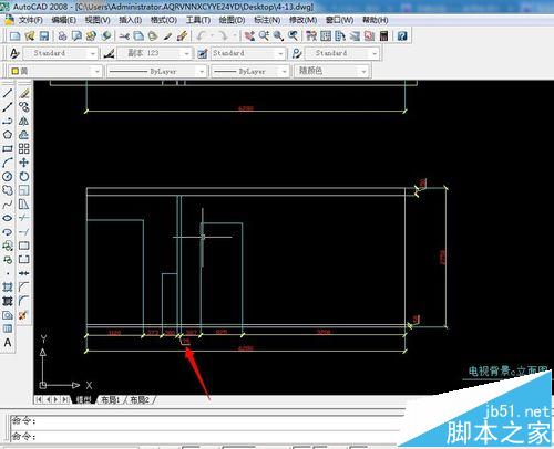
1、如下图可以看到了这里就是一个平面图,现在要把电视墙的立面图画出来。

2、首先把这墙体都复制出来,如下图所显示出来,在把多余的删除去。

3、如下图可以看到了删除外面的效果出来。

4、这里在用标注看看长度有多长,这里长是6280高是2750,一般高度都是2750毫米也有高一点的,看情况而定。

5、在画出如下图,上面的高度是150是吊顶的,下面是50是踢脚线。

6、这里在画如3200毫米的宽度,门的高度一般是2000毫米左右。

7、如下图可以看到了这里画出门宽度825、旁边跟着尺寸来进行来就可以了,要灵活一点,多一点少一点都是可以的。

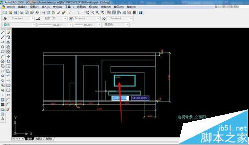
8、画好上面之后就可以画电视墙面了,其实电视墙面是很容易画出来的,如下图所显示出来。

9、如下图是宽度的630。

10、在把电视机的方框画出来,下面的柜台也是一样可以画出如下图,这里也是灵活一点。

11、在标注cctv作为电视符号。

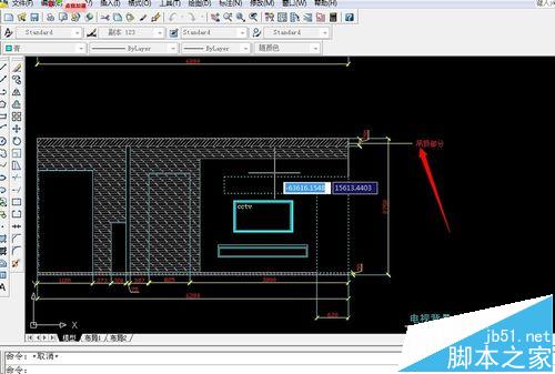
12、在按H空格键就出来图案填充,这里选择jis_rc_10,比例为5。

13、在如下图在选择图案为cork是墙体比例为15。

14、在输入多重引号,可以看到如下图吊顶部分。

15、如下图可以看到这里画完立面图的效果,这里原理是一样的,可以慢慢来画。

相关推荐: