cad创建好表格后,有时需要对其进行修改,在这里为大家讲下我修改的方式,供大家借鉴
1、修改表格的行数,点击你所要添加的行的上一行或下一行,左键随便选中一单元格,然后点击右键,出现快捷命令,选择行,根据位置选择在上一行添加或下一行添加

2、添加列,跟添加列差不多,只是在快捷命令里选择列就行了

3、合并单元格,点击左键不放,选择你要合并的单元格,右击,出现快捷命令,选择合并,如图,可按行合并,也就是将相同行的合并在一起,列同解

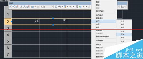
4、在此,再说一点,有时输入数据时会发现数据置顶,或在左上或左下,如图一,这是对齐方式出现错误,左键不放选中要改的单元格,右击,对齐,正中,即可

