下面为大家介绍CAD在国标中怎么同时显示公差代号和极限偏差方法,希望能对大家有所帮助!
方法/步骤
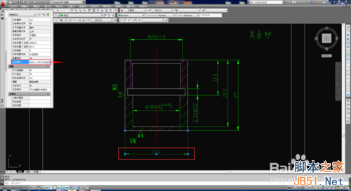
1、如图,怎么同时显示公差代号和极限偏差,以椭圆框中24尺寸为例;

2、选中24的尺寸,然后同时按Ctrl和1,弹出左侧属性框,滑动滚条,在文字替代里输入相关文字;

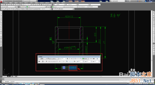
3、得到如下尺寸;

4、双击该尺寸,弹出文字格式框,然后再选中矩形框中的尺寸;

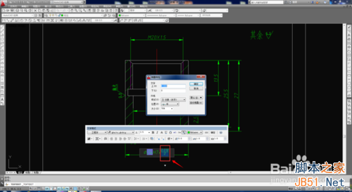
5、点击框中的b/a;

6、选中矩形框中内容,双击,弹出堆叠特性框;

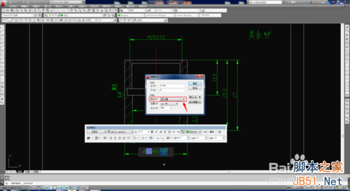
7、在样式里选择公差,点确定;

8、加上括号后点确定;

9、最终效果如图,符合国标。

以上就是CAD在国标中怎么同时显示公差代号和极限偏差方法介绍,希望能对大家有所帮助!