有时,在打印很大的CAD图纸的时候,你只需要其中某一部分,这个时候怎么办呢?下面为您讲解如何打印部分图纸。
首先,请打开你需要打印的CAD图纸。并确定打印机能正常工作。

第二步,任意位置上按 ctrl+p或者如图中左上角打印符号一样,点击以后弹出打印 窗口。选择要用的打印机型号

第三步,选择打印的格式,如1,纵向和横向、2,纸张大小(A1,A2······等等)、3打印份数。还可以在[【特性】]里面更精细的选择格式

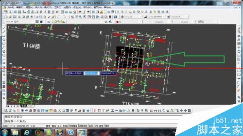
第四步,这是打印部分图纸的关键,格式设置好以后,点击【窗口】,此时会回到图纸界面,此时图纸属于编辑状态,所以是灰白色的。用鼠标选中你要打印的部分内容。图纸中深黑色的地方就是选择出来打印的部分(箭头所指的地方)


五步,选择内容以后,点击回车,然后选择好【布满图纸】和【居中打印】。一定要选择哦,不然打印的东西,严重影响美观

第六步,点击【应用到布局】,然后点击预览,看看效果吧

这就是预览的效果图了,回车打印吧
