CAD布局只不过选不过要快速创建不规则视口。该怎么创建不规则的视口呢?下面我们就来看看详细的教程。
1、首先安装任意版本的CAD,小编是cad2010。

2、随意打开任意一张图纸,如图所示。

3、切换到布局窗口。

4、在布局窗口随便建立一个图框,如图所示。


5、在菜单栏查找“视图”-“视口”-“多边形视口”,点击,如图所示。


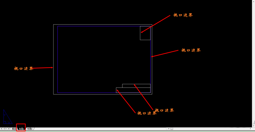
6、按照一定的顺序在已画好的图框里沿着边线依次点节点,最后形成一个闭合的多边形。如图所示。



以上就是cad创建不规则视口的教程,希望大家喜欢,请继续关注脚本之家。
相关推荐: