cad中数据想要求和,该怎么求和呢?下面我们就来看看cad表格求和的教程。

1、点击桌面的AutoCAD 2014 - 简体中文 (Simplified Chinese)快捷方式,打开软件。

2、通过菜单栏的【文件】》【打开】方式,载入有数据表格的cad文件。

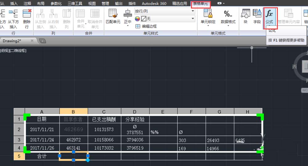
3、在表格中选中合计栏的单元格。

4、接着选中【表格单元】》【插入】》【公式】选项。

5、在下拉列表中选择所需运算类型【求和】。

6、然后用鼠标选择需要求和的表格范围,形式和excel的一样“=Sum(B2:B4)”,然后按回车完成计算操作。

7、拖动表格右下角的蓝色填充柄同样可以复制公式到其他单元格。

以上就是cad表格求和的教程,希望大家喜欢,请继续关注脚本之家。
相关推荐: