AutoCAD2004是Autodesk公司在03年推出的一款计算机辅助设计软件。经过这么多年的不断的完善,现在已经成为国际上广为流行的绘图软件。具有完善的图形绘制功能、强大的图形编辑能力。但是具体利用AutoCAD2004绘制建筑平面图,并不是所有小伙伴都会,今天小编就如何用autocad2004绘制建筑给大家讲解一下。如图,绘制好的建筑平面图

一、绘制建筑平面图前的准备工作?
1、在绘制建筑平面图的时候,我们要清楚的知道建筑平面图的组成,比如什么是轴线、什么是门窗、什么是墙体、什么是标注,只有了解了这些,才能快速的绘制出建筑平面图。
如图,轴线、门窗、阳台、标注、墙体

二、具体绘制建筑平面图,操作步骤是?
1、双击电脑桌面的autocad2004软件快捷图标,打开软件,软件界面。如图

2、待软件打开之后,点击软件图层管理工具,新建“墙体/轴线/门窗/标注”图层,并给图层赋予属性(颜色/线型等),如图



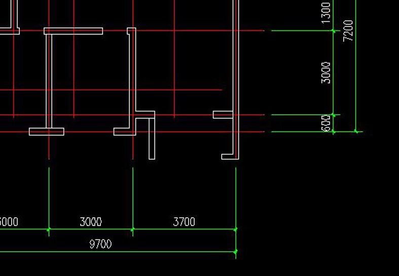
3、待软件图层建好之后,先在轴线图层上建立好轴线网,然后依托轴线网,在标注图层,标注轴线尺寸,完成轴线和标注,如图


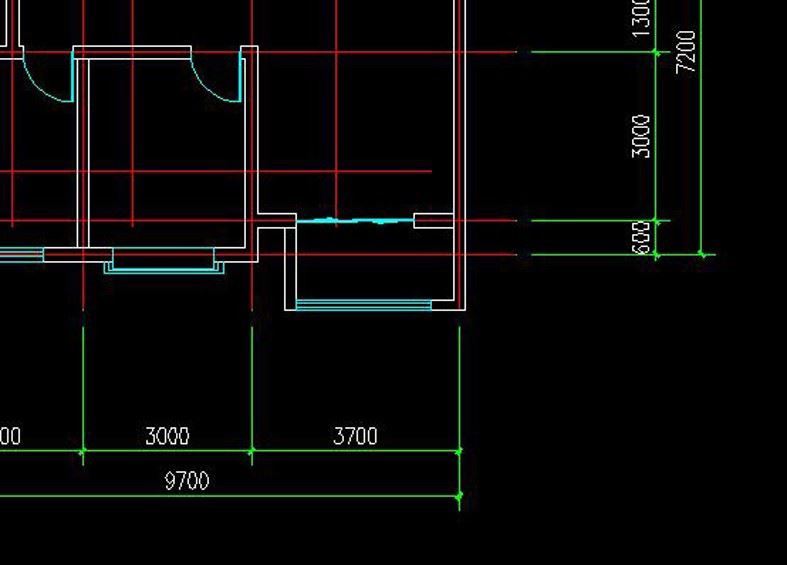
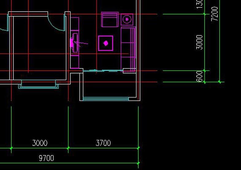
4、待轴线和标注图层完成之后,依托轴线绘制墙体,绘制完成之后,留出门窗的位置,待墙体绘制完成之后,绘制门窗,待门窗绘制完成之后,即可绘制家具,待家具完成之后,即完成建筑平面图的绘制。如图



5、到此为止,建筑平面图就绘制完成了,希望能帮助到有需要的小伙伴,不过不喜勿喷!!!