cad描图怎么定比例? CAD按比例精确描图的技巧

所属分类: 媒体动画 / AutoCAD 阅读数: 81
收藏 0 赞 0 分享

在园林景观设计中,我们经常需要在CAD中细化手绘方案稿,这时候就需要把手绘的方案平面图导入CAD中描图,怎么样使我们的描图能按比例准确进行呢?下面给大家介绍一下我自己的经验。

1、前提条件这里先说明一下,本经验所用案例是   场地尺寸确定的,场地长96米,宽76米,如果是没有给定场地尺寸,我们必须要找一个参照,这个参照尺度越大对我们精确缩放越有利,比如场地内较大的建筑的长和宽。

2、打开CAD将手绘方案平面图导入CAD中,导入手绘稿的时候注意,双击图片边,在弹出的对话框中将“淡入”的滑动条,调整一下,这样会使我们的CAD线条比较清晰。

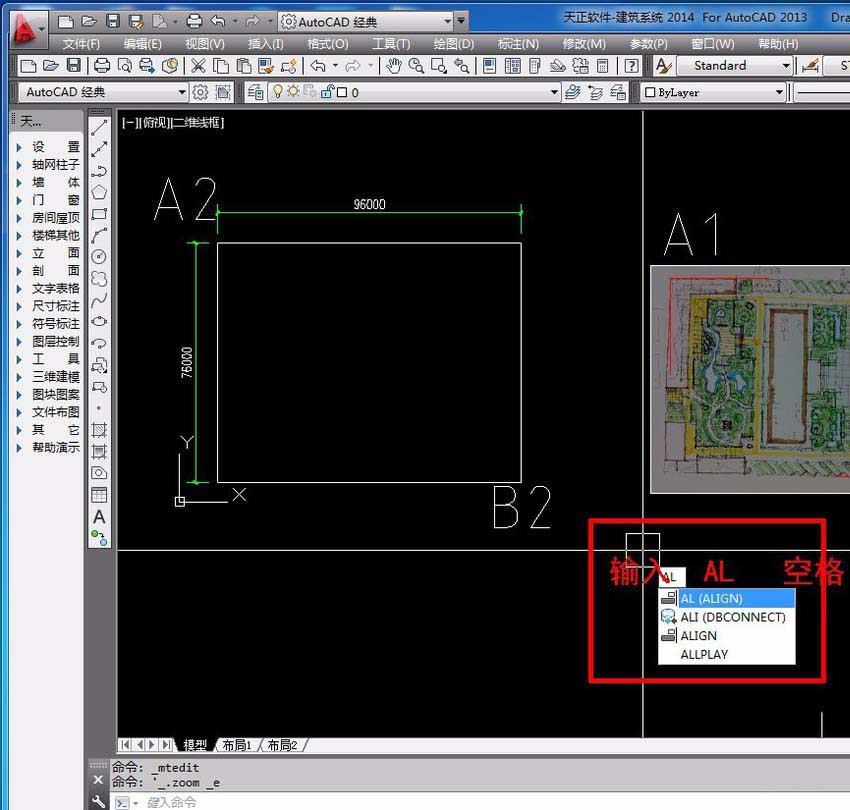
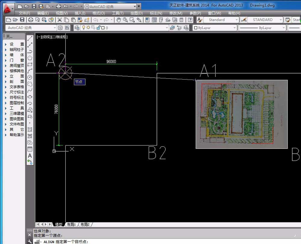
3、画一个长96米   宽76米的矩形,在导入的手绘稿上画出左上角和右下角的角点。图中A1  B1   A2   B2四个点事为了说明问题,大家在实际制图操作中不需要标。

4、输入  “ AL"  命令,空格,点击A1点-------点击A2点-------点击B1点--------点击B2点-------空格键,命令提示:是否基于对齐点缩放,选择    ”是“   回车,对齐完成,这样缩放,我们手绘方案稿的比例尺寸和项目场地的比例尺寸就完全吻合了,接下来注意景观设计的常规尺寸进行描图,我们就能很完美的完成方案描图任务,此方法用在扩初阶段是最好的。

相关推荐:

AutoCAD怎么修改标注比例?

CAD怎么把图纸比例尺改为1:300?

cad图纸怎么缩放? cad图纸xy方向按不同比例缩放的方法

更多精彩内容其他人还在看

cad剖切命令怎么使用?

cad剖切命令怎么使用?cad是画图常用的软件,其中剖切又是三维图形所必须的操作之一,这个操作可以让你更容易的创建一个你想要的三维实体出来,下面就来看一下如何使用剖切命令吧
收藏 0 赞 0 分享

CAD中虚线不显示该怎么调?

CAD中虚线不显示该怎么调?CAD文件中虚线显示不出来有两个原因,下面我们一起来看看是哪两个问题造成cad虚线不显示,以及解决办法,需要的朋友可以参考下
收藏 0 赞 0 分享

CAD怎么画立体图?CAD怎画圆锥体的教程

CAD怎么画立体图?在使用CAD时我们常常都是使用CAD来进行平面图形的绘制,但是cad其实也强大的立体图绘制功能,下面分析那个CAD怎画圆锥体的教程,需要的朋友可以参考下
收藏 0 赞 0 分享

CAD如何画立体图?CAD画圆锥体方法

CAD如何画立体图?对于一些新手来说,很多朋友都不知道怎么绘制,其实方法很简单,下面小编就为大家CAD画圆锥体方法,希望能对大家有所帮助
收藏 0 赞 0 分享

CAD怎么新建图层图纸?

CAD怎么新建图层图纸?当大家时用CAD一段时间后,对命令有了一定的了解,开始画复杂图形的时候,会用到图层的命令,图层方便同一属性的管理,比如画可以区分自己所画的辅助线和实例图
收藏 0 赞 0 分享

CAD2010文档图纸怎么设置降级保存?

CAD2010文档图纸怎么设置降级保存?最近再练CAD ,学会了一些小技巧,今天就教教大家2010怎样降级保存文件,以方便在07或04的CAD上看,需要的朋友可以参考下
收藏 0 赞 0 分享

CAD拉伸命令S不能移动怎么办?

CAD拉伸命令S不能移动怎么办?在CAD中拉伸命令S不能拉伸块的原因,其实很简单。块的基点没在块上,离块太远了,所以用S命令框选的时候没选上基点,下面分享解决办法
收藏 0 赞 0 分享

怎么给cad文件夹设置密码加密?

怎么给cad文件夹设置密码加密?经常用cad画一些设计图纸,然后存放在文件夹里面,有的时候关电脑不放心,怕被人偷走自己的设计,下面分享加密的方法,需要的朋友可以参考下
收藏 0 赞 0 分享

2010版cad 更改背景颜色图文教程

这篇教程是向脚本之家的朋友介绍2010版cad 更改背景颜色方法,教程很不错,对于不知道怎么操作的朋友很有借鉴方法 ,一起来看看吧
收藏 0 赞 0 分享

windows系统怎么纯净安装CAD2007?

windows系统怎么纯净安装2007CAD?cad是绘图相关室内设计,装修,园林设计的都用的到这个软件,但是很多人不会安装,下面分享cad2007的安装方法,需要的朋友可以参考下
收藏 0 赞 0 分享
查看更多