UG10.0如何建模佛门的万字标记?惊今天我们就来看看使用ug制作立体图标的方法,如下图所示。

1、如下图所示,打开UG10.0软件,新建一个空白的模型文件,然后另存,用“万字标记”命名。

2、如下图所示,点击工具栏中的拉伸图标,点击基准坐标系中的XY平面。

3、如下图所示,进入草图,激活矩形命令,随手画一个矩形,双击修改尺寸,100x100,边距离轴50,激活偏置曲线命令,向内偏移10。

4、如下图所示,激活直线命令,画两条竖直的平行的直线段和两条水平的平行的直线段,激活快速尺寸命令,标注尺寸5、10、5、10。

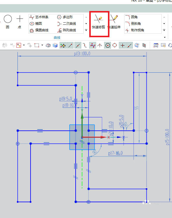
5、如下图所示,点击工具栏中的“快速修剪”,按照下图所示进行修剪操作,最后形成一个空心的“卐”,点击完成,退出草图。

6、如下图所示,回到拉伸对话框,设置拉伸限制为:从0开始,到10结束。

7、如下图所示,激活工具栏中边倒圆命令,然后两次边倒圆R1即可。

8、如下图所示,部件导航器中将基准坐标系隐藏,将显示改成着色。

9、如下图所示,标题栏中点击“渲染”,工具栏中点击“真实着色”,工具栏中点击“全局材料绿色亮泽塑料”。
最后的效果就是下图所示的了。

以上就是UG10.0建模三维立体佛门的万字标记的教程,希望大家喜欢,请继续关注脚本之家。
相关推荐: