UG10.0想要建模平面形直角尺,如下图所示的平面形直角尺,该怎么建模呢?下面我们就来看看详细的教程。

1、如下图所示,打开UG10.0软件,新建一个空白的模型文件。

2、如下图所示,首先点击工具栏中的拉伸图标,激活拉伸命令,然后点击基准坐标系中的XY平面,这样就能直接进入草图界面。

3、如下图所示,进入草图,自动激活轮廓命令,然后以坐标原点为起点和终点,画一个空心的L形状,尺寸无所谓。

4、如下图所示,点击草图工具栏中的“快速尺寸”命令,按照下图尺寸标注,50、40、15、15,共四个尺寸。

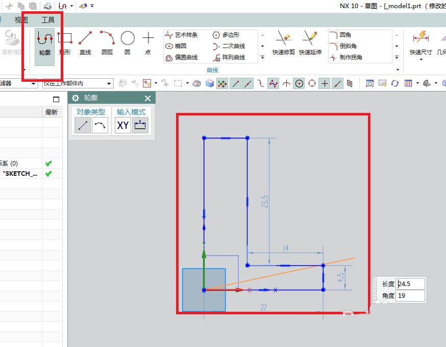
5、如下图所示,点击草图工具栏中的直线命令,然后以内交点为起点画一条斜线段,然后激活快速尺寸命令,标注角度45°,然后鼠标左键点击线段,然后在弹出的临时工具栏中点击“转换为参考”图标,将这条斜线段设置为参考线。

6、如下图所示,又一次激活轮廓命令,基于参考线画一个封闭的图形,两条线段与参考线平行,一条连线与它垂直,激活快速尺寸命令,标注三个尺寸:3.5、3.5、3.5。

7、如下图所示,点击工具栏中的“快速修剪”命令,按照下图,将多余的线段修剪掉,点击完成,退出草图。

8、如下图所示,回到拉伸对话框,设置距离:从0开始,3结束,点击确定,完成。

9、如下图所示,在部件导航器中将基准坐标系隐藏,然后真实着色,全局材料拉丝铝,最后的效果就是下图所示的了。

以上就是UG10.0平面形直角尺的建模方法,希望大家喜欢,请继续关注脚本之家。
相关推荐: