UG10.0想要建模回形笔枕,该怎么创建呢?下面我们就来看看详细的教程。

1、如下图所示,打开UG10.0软件,新建一个空白的模型文件,让我们进入到三维建模空间。

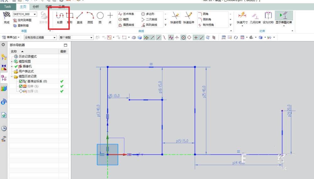
2、如下图所示,点击工具栏中的拉伸图标,激活拉伸命令,然后点击基准坐标系中的YZ平面,直接进入草图。

3、如下图所示,进入草图之后,我们自动激活了“轮廓”命令,然后随意画一个下图中的回形,然后激活工具栏中的几何约束命令,添加相等、共线、平行等约束,然后激活快速尺寸命令,标注尺寸,不会标注的可以参照下图中的尺寸标注,最后点击完成,退出草图。

4、如下图所示,退出草图之后,回到拉伸对话框,因为草图不是封闭的,所以从拉伸预览的效果可以得知这是个片体,设置距离从0开始,30结束,点击确定。

5、如下图所示,执行【更多——加厚】,激活加厚命令,然后出现加厚对话框,设置偏置1:-1.5,设置偏置2:1.5,选择刚刚拉伸出来的面,点击确定。

6、如下图所示,点击工具栏中的“边倒圆”命令,在“边倒圆”对话框中设置半径1为15,在实体上选择两条实体边线,点击应用。完成第一次边倒圆操作。

7、如下图所示,第二次边倒圆,看着这些边线,选中他们,然后设置半径1为5,单击“应用”。

8、如下图所示,第三次边倒圆,只要四条边,半径1设置为1.5,点击“应用”。

9、如下图所示,第四次边倒圆操作,也是最后一次边倒圆操作,半径1不变,依旧是1.5,选择的实体边线只要两条,点击确定。

10、如下图所示,首先在部件导航器中将基准坐标系和第一个拉伸面隐藏好,然后将显示改成着色。

11、如下图所示,先将显示改成艺术外观,然后【菜单——视图——可视化——材料/纹理——木纹线】,找到一种想要的木纹线指定给实体,最后的效果就如下图所示了。

以上就是UG10.0快速建模回形笔枕的教程,希望大家喜欢,请继续关注脚本之家。
相关推荐: