Proe5.0中想要创建一个小圆螺母的三维模型,这里多说一下,圆螺母的标准是GB/T812,小圆螺母的标准是GB/T810,其他的特性是一样的,当然了,结构、尺寸可能不同,下面我们就来看看详细的创建方法,请看下文详细介绍。

1、如下图所示,打开Pro/e5.0软件,新建一个实体零件文件,为了省时间,可以直接选用缺省模板。

2、如下图所示,执行【拉伸——放置——定义——FRONT面——草绘】,使软件下一步进入到草绘环境。

3、如下图所示,进入到草绘环境,
1)激活圆命令,以坐标原点为圆心画两个圆,
2)双击修改两个的尺寸,大圆ø30,小圆ø16.38,
3)激活直线命令,画四个凹形,
4)激活裁剪命令,将四个凹形处的圆弧裁剪掉,
5)激活标注命令,标注四个凹形的尺寸,
6)打“√”,完成并退出草绘。

4、如下图所示,软件左上角控制栏中设置拉伸高度为6,然后在软件右上角控制栏中点击“√”,完成并结束本次操作。

5、如下图所示,激活倒直角命令,先对大圆的两边线倒C0.5的直角,再对内孔的两边线倒C1.0的直角。

6、如下图所示,执行【插入——螺旋扫描——切口】,这是Pro/e中创建螺纹的第一步操作。

7、如下四幅图所示,因为这四步的操作太简单了,笔者就放到一起说了。
第一幅图:点击“完成”,
第二幅图:点击“RIGHT面”,
第三幅图:点击“正向”,
第四幅图:点击“缺省”。



8、如下图所示,进入到草绘环境,
1)激活中心线命令,过坐标原点画一条横向中心线,
2)激活类型命令,将内孔的一条边线显示出来,再删除掉,这时会出现参考线,
3)激活直线命令,过参考线画一条直线,长度要穿过整个实体,
4)点击“√”,完成这里的操作,继续下一步。

9、如下图所示,退出草绘之后有个消息输入窗口,要我们输入节距,这里就输入1.5,然后打√。

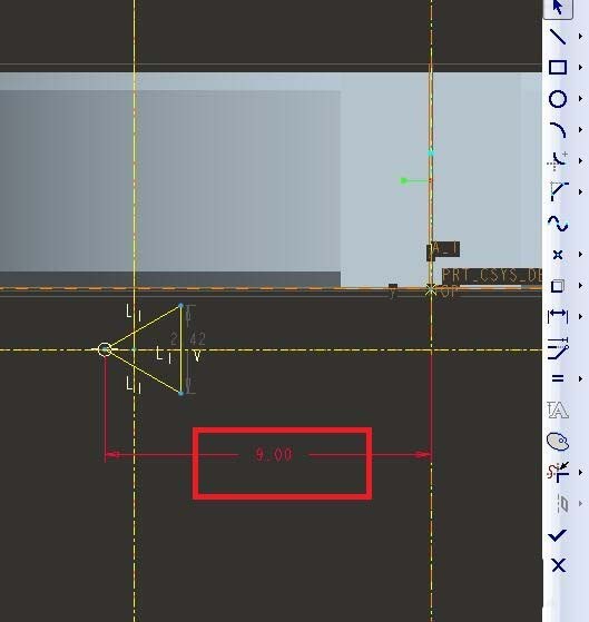
10、如下图所示,又一次进入到草绘环境,
1)激活直线命令,在横线中心线取任一点为起点画一个封闭的三角形,
2)激活约束,将三角形约束成等边三角形,
3)激活标注命令,标注尺寸,三角形尖部距离内孔的中心线9,
4)打“√”,完成并退出草绘。

11、如下两幅图所示,这里有两步操作,第一幅图:点击“正向”,第二幅图:点击“确定”。


12、完成以上所有操作,GB/T 810 M18x1.5的小圆螺母就建模完成,这一步只是隐藏掉所有的基准面,如下图所示。

以上就是Proe5.0创建小圆螺母零件的教程,希望大家喜欢,请继续关注脚本之家。
相关推荐: