solidworks2017中绘制两件模型很简单,想要画镶块零件,该怎么绘制呢?下面我们就来看看详细的教程。
1、打开solidworks2017,并建立一个新的零件。
2、选定前视基准面,正视所选基准面,利用直线命令进行绘草图,并设定相关尺寸。采用拉伸凸台特征命令,点击确定。



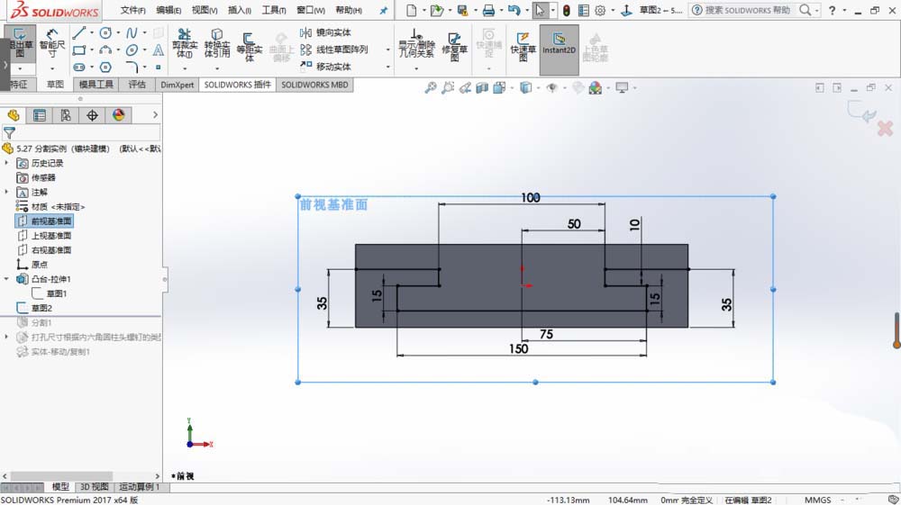
3、再次选定前视基准面,正视所选基准面,利用直线命令进行绘草图,并设定相关尺寸。

4、采用分割特征命令,点击确定。


5、选定模型上表面,正视所选基准面,利用点命令进行绘草图,并设定相关尺寸。

6、选定模型右侧面,正视所选基准面,利用点命令进行绘草图,并设定相关尺寸。

7、采用打孔特征命令,点击确定。


8、采用零件移动/分割特征命令里的移动命令,点击确定。


9、最后镶块就画好了。
以上就是solidworks画镶块的教程,希望大家喜欢,请继续关注脚本之家。
相关推荐: