solidworks2017中想要画封盖零件,该怎么绘制这个立体的模型呢?下面我们就来看看详细的教程。
1、打开solidworks2017,并建立一个新的零件。
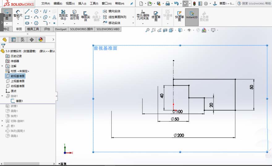
2、选定前视基准面,正视所选基准面,利用直线命令进行绘草图,并设定相关尺寸。采用旋转凸台特征命令,点击确定。



3、采用拔模特征命令,点击确定。

4、采用圆角特征命令,点击确定。


5、采用抽壳特征命令,点击确定。


6、选定前视基准面,正视所选基准面,利用直线命令进行绘草图,并设定相关尺寸。采用旋转切除特征命令,点击确定。



7、选定模型上表面,正视所选面,利用直线命令、圆命令进行绘草图,并设定相关尺寸。采用筋特征命令,点击确定。



8、采用圆周列阵特征命令,点击确定。


9、采用圆角特征命令,点击确定。


10、最后管卡就画好了。
以上就是solidworks2017绘制封盖的教程,希望大家喜欢,请继续关注脚本之家。
相关推荐: