今天我们就来看看SolidWorks通过钣金展开折叠命令创建机箱边角处散热孔的方法,很简单的实例教程,请看下文详细介绍。
1、打开SolidWorks,新建一个零件模型。在前视基准面上绘制草图,创建基体法兰,如图所示。钣金厚度“1 mm”,折弯半径“1 mm”,方向为两侧对称,深度“100 mm”。


2、单击“钣金—展开”命令,如图所示,可展开单个的折弯。

3、选择固定面和要展开的折弯,单击确定,展开折弯。



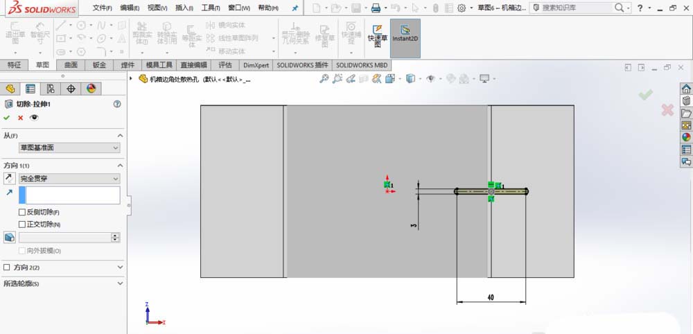
4、在图示端面上绘制草图,创建切除特征,完全贯穿,如图所示。

5、阵列切除拉伸特征,如图所示。

6、镜像阵列特征,镜像面选择右视基准面。

7、单击“钣金—折叠”命令,如图所示,可将单个折弯折叠。

8、选择要折叠的折弯,单击确定,将创建完边角散热孔的机箱重新折叠。


9、至此,完成机箱边角处散热孔的创建。保存模型。


以上就是SolidWorks创建边角散热孔的技巧,希望大家喜欢,请继续关注脚本之家。
相关推荐: