Sketchup中想要建模一个立体的楼梯,该怎么沪指楼梯模型呢?下面我们就来看看详细的教程。

1、首先,我们将我们的楼梯CAD或者其他平面图纸导入到Sketchup中,这样我们就有了做楼梯的一个大致标版。

2、随后,我们在Sketchup左侧的工具栏中,找到矩形工具,选中矩形工具,对我们图纸中的楼梯登进行描边,楼梯一般都是矩形,使用矩形工具可以轻松描边。

3、使用矩形工具框选楼梯之后,我们就会看到楼梯的台阶变成了白色的,我们将所有的楼梯都使用矩形工具进行框选。

4、由于楼梯大致都是台阶相同的,因此我们绘制完成一边,就可以进行楼梯的制作了,在左侧工具栏选择推拉工具。

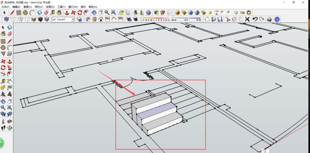
5、将推拉工具放置到楼梯的第一个台阶,向上拉出模型,输入我们的台阶高度,然后按下Enter键,即可将楼梯抬高到合适的高度。

6、之后,我们依次将楼梯的台阶拉出高度,高度均衡提高,这样就会逐渐形成一个完整的楼梯,但是我们要计算好每一个楼梯台阶的高度。

7、将所有的楼梯台阶制作完成之后,我们就完成了一个很简单的楼梯绘制,如果我们想要更多的细节处理,可以自行进行修改操作。

以上就是关于SU绘制立体楼梯的教程,希望大家喜欢,请继续关注脚本之家。
相关推荐: