SolidWorks建模零件很简单,想要建模一个托架模型,该怎么建模呢?下面我们就来看看详细的教程。
1、打开SolidWorks,新建一个零件文件。


2、在前视基准面上绘制草图如图所示,创建拉伸特征,拉伸深度“24 mm”。


3、在右视基准面上绘制草图,创建拉伸特征,拉伸深度为两侧对称“50 mm”,如图所示。


4、创建基准面,选择图示面,偏移距离“80 mm”。

5、在创建的基准面上绘制草图如图所示,创建拉伸特征方向1深度“12 mm”,方向2深度“9 mm”。


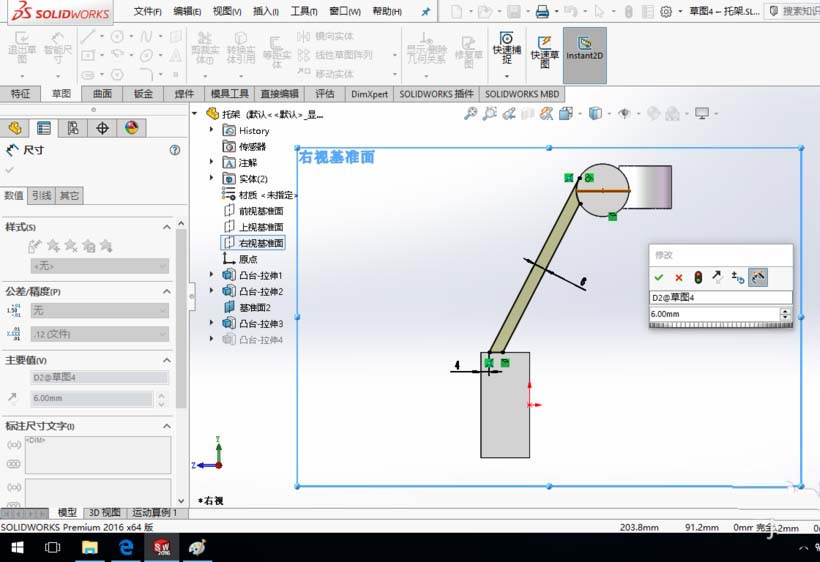
6、在右视基准面上绘制草图如图所示,创建拉伸特征,两侧对称深度“40 mm”。


7、在右视基准面上绘制草图,创建筋特征,筋厚度“8 mm”。



8、在图示端面上绘制草图,创建切除拉伸特征,如图所示。


9、在图示端面上绘制一个直径“16 mm”的草图圆,创建切除-拉伸2,如图所示。

10、在图示端面上绘制一个直径“11 mm”的草图圆,创建切除-拉伸3,如图所示。

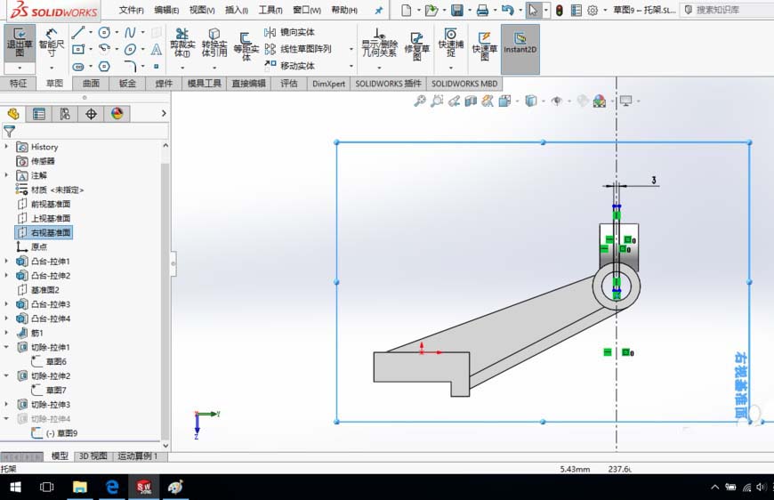
11、在右视基准面上绘制草图如图所示,创建切除-拉伸4。


12、创建圆角特征,圆角半径“2 mm”。


13、创建柱形沉头孔,参数设置如图所示。


14、给定沉头孔的位置尺寸如图所示,单击确定。

15、至此,托架创建完成。保存零件模型。


以上就是SolidWorks中建模三维托架零件的设计方法,希望大家喜欢,请继续关注脚本之家。
相关推荐: