由于autocad软件是比较专业的绘图软件,只有少数的技术人员懂得使用该软件,其他人很少有人会在自己电脑上安装该软件,那么为了看图方便,有时需要将autocad文件转换为PDF格式,那么PDF格式的图纸能否再转换为autocad文件呢?答案是肯定的,接下来小烟就给大家介绍一下怎样将pdf格式文件转换为autocad文件。


1、首先在电脑上下载并安装pdf转autocad的软件,这种转换软件有很多,本人使用的是一款pdf2cad软件,如下图所示。

2、打开该软件,在右侧可以看到【增加】按钮,点击【增加】按钮弹出选择要转换的pdf文件窗口,如下图所示。

3、从本地电脑存储路径上选择要转换为cad的pdf格式文件,选定后点击【添加】按钮,该文件出现在该窗口列表内,如下图所示。

4、点击【下一步】,进入转换界面,该界面可以选择转换文件存储路径,如下图所示。

5、设置完毕后,点击【转换】按钮,即可完成PDF转CAD文件,该CAD文件格式为DXF格式,如下图所示。


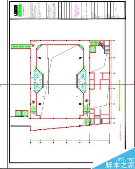
6、用autocad软件打开转换成功的dxf文件,即可查看到转换效果了,如下图所示。
