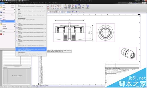
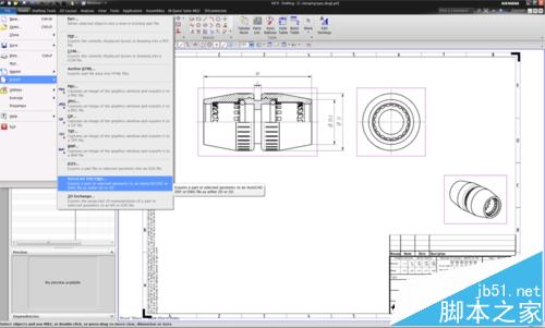
有时候我们需要将UG NX9.0中的模型出具工程图并转换成CAD格式dwg,UG NX9.0中有多种功能实现,下面介绍各个功能的操作。

1、点击文件菜单中的Export→AutoCAD DXF/DWG...,弹出CAD格式转换窗口。在该窗口中,我们可以看到,转换的CAD格式有DXF和DWG两种,转换类型有2D、3D、CGM三种,下面进行详细介绍。


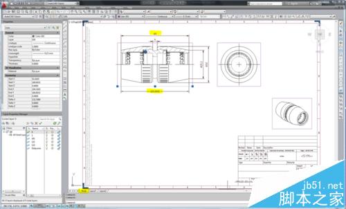
2、2D转换类型中,又分model和layout两种,先介绍model。选中后点击finish,进行转换,这个过程中会有脚本运行,等脚本运行完毕,则转换完毕。用AutoCAD打开,可以发现,此种类型转换,是将UG工程图图面信息转换到AutoCAD的model界面中,UG的图框在其中显示为单线条,已经不再是图框了。对视图进行标注,可以发现标注的尺寸不跟UG视图比例匹配。
本例中的主视图为2:1比例,则转换后的CAD视图会根据这个比例放大2倍,所以标注的尺寸为实际尺寸2倍。


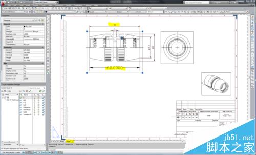
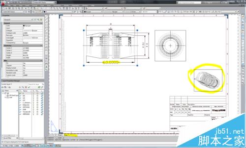
3、选择2D转换类型中的layout,转换完毕后打开,可以发现,此类型转换是将UG中工程图和模型绑定转换,即工程图转换到CAD的layout中,CAD的model界面中则转换了主视图和建模环境下的轴侧视图,如图所示。UG的视图图框完全转换成CAD视图图框,对视图进行标注,可以发现视图比例与UG中的保持一致,都为实际尺寸。


4、选择3D转换类型,转换完毕后打开,可以发现,此类型转换与上面的2D转换类型的layout输出差不多,但是它还将UG中隐藏线转换过来了,在CAD的model中,转换了UG建模环境下的轴侧视图,如图所示。UG的视图图框完全转换成CAD视图图框,对视图进行标注,可以发现视图比例与UG中的保持一致,都为实际尺寸。


5、选择CGM转换类型,转换完毕后打开,可以发现,此类型转换将UG工程图的信息转换过来显示在layout界面,并且都以线条表示,如UG中标注的尺寸,在CAD中被打散炸开了。UG中的视图图框在CAD中消失了。
对视图进行标注,可以发现标注的尺寸不跟UG视图比例匹配。
本例中的主视图为2:1比例,则转换后的CAD视图会根据这个比例放大2倍,所以标注的尺寸为实际尺寸2倍。在CAD的model界面中,将UG模型的线大部分转换过来了。


注意事项:
一般来说,我们常用2D转换类型中的layout输出来转换CAD格式,既能保证视图图框的转换,又能保证视图比例。
相关推荐: